Nagüeles

Te koop Gelijkvloers appartement Costa Del Sol Nagüeles € 575.000,-

Ref.no: RSOR5242255
Price: € 575.000,-

1-7980e48d732b6fc85c14b43b94d2aa54.jpg

Te koop Gelijkvloers appartement Costa Del Sol Nagüeles € 575.000,-

Bedrooms2
Salles de bains2
Superficie du terrain117m²
Poolyes
Gardenyes
Parkingno
Built year2002
Orientatie: West
Staat: uitstekend
Zwembad: gemeenschappelijk
Klimaatregeling: centrale verwarming
Caractéristiques : Terrasse couverte, Ascenseur, Terrasse privative, Parquet, Accès aux personnes à mobilité réduite
Meubels: volledig gemeubileerd
Keuken: volledig ingericht
Hulpprogramma's: drinkbaar water
Ref.no: RSOR5242255
Price: € 575.000,-

Plus d'information ›››
Te koop Gelijkvloers appartement Costa Del Sol Nagüeles € 575.000,-

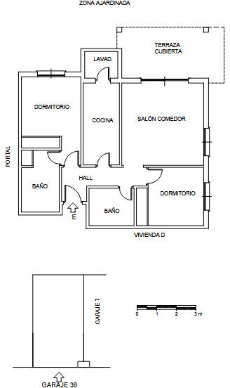
Nous vous présentons cette magnifique propriété située dans l'un des quartiers les plus prisés et prestigieux de Marbella : l'emblématique Golden Mile, un lieu où luxe, confort et qualité de vie se conjuguent harmonieusement. À seulement 800 mètres de la plage, vous profiterez de la Méditerranée en seulement 10 minutes à pied. La propriété est entourée de tous les services essentiels et haut de gamme : supermarchés, restaurants, écoles nationales et internationales, instituts, pharmacies, arrêts de bus, ainsi que les hôtels emblématiques Marbella Club et Puente Romano. Un emplacement privilégié qui vous permettra de rejoindre le centre-ville à pied et de profiter pleinement du quotidien. L'accessibilité est excellente : à 5 minutes en voiture de Puerto Banús, à la même distance du centre-ville et de la vieille ville de Marbella, et avec un accès direct à l'autoroute. L'aéroport de Malaga est à seulement 35 minutes. Située dans une résidence sécurisée construite en 2002, cette propriété offre sécurité, jardins soignés, piscine commune et terrain de paddle, faisant de ce logement un véritable bijou pour ceux qui recherchent confort, style et qualité. Cet appartement de plain-pied, exposé ouest, est idéal pour profiter du soleil de l'après-midi et dispose d'une charmante véranda de 20 m² et d'un jardin privatif, garantissant intimité et atmosphère chaleureuse. La surface habitable totale de 117 m² se compose comme suit : un vaste séjour/salle à manger baigné de lumière naturelle, une cuisine américaine moderne entièrement rénovée en 2023, deux chambres et deux salles de bains complètes, ainsi qu'un jardin privatif, idéal pour se détendre ou recevoir. De plus, une place de parking souterrain avec accès direct à l'appartement par ascenseur offre un confort optimal. L'appartement est équipé de la climatisation et du chauffage et est adapté aux personnes à mobilité réduite. Une opportunité unique grâce à son emplacement privilégié sur le Golden Mile. Parfait comme investissement, résidence secondaire ou résidence principale. Forte rentabilité locative grâce à une demande soutenue dans le secteur tout au long de l'année. Idéal pour ceux qui souhaitent améliorer leur qualité de vie ou investir dans l'un des quartiers les plus prometteurs de la Costa del Sol. Une propriété au charme méditerranéen, où le confort moderne rencontre l'exclusivité de Marbella. Le document d'information abrégé est disponible. Frais : Taxes (ITP ou TVA + AJD) + Frais de notaire et d'enregistrement foncier. BRF

Alternatives

1-7980e48d732b6fc85c14b43b94d2aa54.jpg

Te koop Middle Floor Apartment Costa Del Sol Higueron € 640.000,-

Price € 640.000,-
Plus d'information
1-7980e48d732b6fc85c14b43b94d2aa54.jpg

Te koop Middle Floor Apartment Costa Del Sol Río Real € 630.000,-

Price € 630.000,-
Plus d'information
1-7980e48d732b6fc85c14b43b94d2aa54.jpg

Te koop Middle Floor Apartment Costa Del Sol Fuengirola € 595.000,-

Price € 595.000,-
Plus d'information
1-7980e48d732b6fc85c14b43b94d2aa54.jpg

Te koop Gelijkvloers appartement Costa Del Sol Marbella € 530.000,-

Price € 530.000,-
Plus d'information
Disclaimer | Links
Casadelmar %lng_cookie_notice% %lng_close%
x