Benalmadena Pueblo

Te koop Herenhuis Costa Del Sol Benalmadena Pueblo € 700.000,-

Ref.no: RSOR5336074
Price: € 700.000,-

1-7980e48d732b6fc85c14b43b94d2aa54.jpg

Te koop Herenhuis Costa Del Sol Benalmadena Pueblo € 700.000,-

Bedrooms4
Salles de bains3
Living area158m²
Poolno
Gardenno
Parkingyes
Built year1990
Instelling: dicht bij golf, dicht bij winkels, dicht bij stad, dicht bij scholen
Orientatie: Zuid-West
Staat: goed
Klimaatregeling: airconditioning
Uitzicht: Zee, Panoramisch, Stedelijk
Caractéristiques : Terrasse couverte, Placards intégrés, Proximité des transports, Terrasse privée, Solarium, Sauna, Salle de jeux, Débarras, Salle de bains attenante, Barbecue, Double vitrage, Proximité d'une église, Sous-sol
Meubels: volledig gemeubileerd, optioneel
Keuken: volledig ingericht
Parkeren: Garage, privé
Ref.no: RSOR5336074
Price: € 700.000,-

Plus d'information ›››
Te koop Herenhuis Costa Del Sol Benalmadena Pueblo € 700.000,-

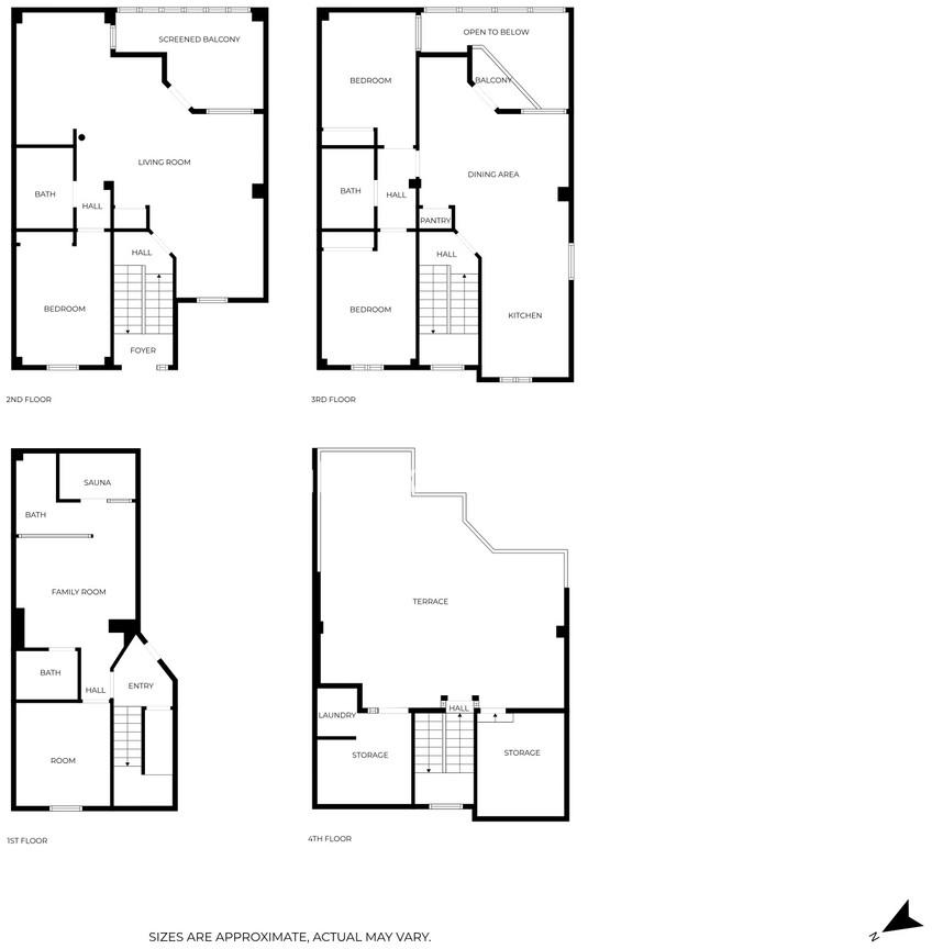
Cette maison offre de multiples possibilités d'utilisation personnelle, comme résidence secondaire ou comme opportunité d'investissement.

La propriété est répartie sur quatre niveaux et se compose de deux appartements indépendants. Au rez-de-chaussée, vous trouverez un espace sauna confortable, une pièce supplémentaire pouvant servir de chambre d'amis ou de bureau, ainsi qu'un garage.

À l'étage supérieur se trouve un appartement lumineux comprenant une cuisine américaine moderne, une chambre et une salle de bains. De là, on accède à une terrasse offrant une vue imprenable sur la mer.

L'étage supérieur abrite un deuxième appartement avec une cuisine ouverte, deux chambres et un agencement pratique idéal pour une famille ou pour accueillir des invités.

Le dernier étage est couronné par une superbe terrasse sur le toit offrant une vue panoramique imprenable sur la mer – l'endroit idéal pour se détendre et profiter du style de vie méditerranéen.

L'emplacement est excellent : les charmants commerces, restaurants et cafés de Benalmádena Pueblo sont accessibles à pied, et l'aéroport est à environ 15 minutes.

Cette propriété combine de manière unique espace, vues et emplacement — une opportunité rare sur la Costa del Sol !

Alternatives

BOHAAP4845_26340_V1_8876.jpg

Te koop Herenhuis Costa Del Sol Fuengirola € 619.000,-

Price € 619.000,-
Plus d'information
BOHACP1374_4316_V1_45E1.jpg

Te koop Herenhuis Costa Del Sol Fuengirola € 645.000,-

Price € 645.000,-
Plus d'information
BOHACP1364_4240_V1_55FE.jpg

Te koop Herenhuis Costa Del Sol Estepona € 730.000,-

Price € 730.000,-
Plus d'information
BOHAAP4770_24773_V1_CA53.jpg

Te koop Herenhuis Costa Del Sol La Cala De Mijas € 753.000,-

Price € 753.000,-
Plus d'information
Disclaimer | Links
Casadelmar %lng_cookie_notice% %lng_close%
x